製造工程

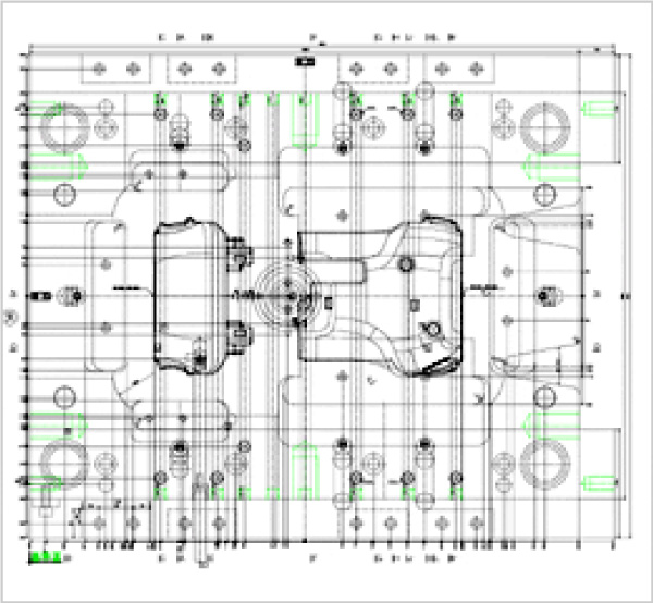
金型設計
製品設計の早期段階からお取引先と検討を重ね、製品要件や生産要件を反映しています。また社内では型図検討会を実施し、社内各部署からの提案も含め、工数短縮と品質アップを社内一体となって進めています。なお3Dモデリングに於いては、自動車業界の基幹CADとして普及しているCATIAを用いています。


機械加工
主にマシニングセンター、放電加工機、ワイヤーカット放電加工機を使用して加工を行い、年々複雑化する金型構造の加工やお客様に求められる加工精度の達成を目指しております。また昼間の時間帯は作業者が機械に付かなければならない加工を優先し、夜間はマシニングセンターや放電加工機が数種類の工具や電極を自動交換する無人運転による加工、ワイヤーカット放電加工機はプログラムにより複数の加工をすることで機械の稼働率を高め、短納期への対応をしております。


仕上げ、組付け、合わせ
金型に組み込まれる部品の製作は汎用機、NC機械を使用しております。


社内TRY、金型評価
新型、設計変更型を社内成形機で確認TRY(成形)をします。新型ファーストTRYは設計者、各課長、型担当者が形成に立ち会います。金型の確認、成形性や成形品の社内評価をします。成形問題点は、課題として今後製作する金型に対策、反映していきます。
